- 信息詳細您現在所在的位置:新鄉市富皓機械設備有限公司 > 產品展示 > 礦用篩機 > 正文
弧形篩

弧形篩簡介:
弧形篩也稱為(香蕉振動篩)是以外形來定義的,簡稱香蕉篩,具有箱式振動器和多段不同傾角篩面的直線振動篩,篩箱的形狀與香蕉相似。主要用于細粒含量高的大、中粒級物料的粒度分級,亦可用于脫水、脫介和脫泥等作業(細粒指粒度小于篩孔尺寸一半以下的顆粒)。
弧形篩是在直線振動篩上注入香蕉形多段篩面的專有技術設計而成的。在入料端有一較大的斜坡篩面,隨后緊接著以一定數目的角度逐級下降,址到出粒口為止,入料端的斜坡篩面可使更多的物料通過篩面時有較高的篩分速度和較薄的物料分層。因為大塊物料較快地穿過陡坡,這種較早地分層使細的顆粒更快的靠近篩面,能相對不受阻礙地通過縫隙,所以,香蕉形振動篩具有極高的篩分效率和高于傳統分級篩1.5-2倍處理量的特點,是先進、受歡迎的篩分機械產品。
弧形篩工作原理:

弧形篩在入料端有一斜坡面,先以34°開始,緊接著以一定數目的角度下降到大約為10°的出料端為止。篩面采用不同傾角的折線形式,從入料端到出料端物料層厚度是不變。各段篩面上物料量與流速比值穩定、料層高,呈現均勻狀態,篩分效率顯著提高,比相同有效面積振動篩的處理量提高1-2倍,對于細粒含量高,特別是物料中料度占分級粒度尺寸小于1/2的物料含量較大時,香蕉型振動篩分機具有極高的篩分效率。
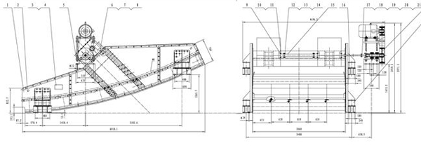
弧形篩結構圖紙:

弧形篩主要由篩箱、篩網、激振器、減振彈簧和下座架等組成。香蕉篩是由電動機和激振器作為振動源,激振器主要是由偏心軸、皮帶輪、軸承及軸承座等組成,激振器安裝在篩箱側板上,并由電動機通過三角皮帶或軟連接與其相連,電動機帶動偏心軸旋轉,產生離心慣性力,迫使篩箱振動。
弧形篩應用行業:石料廠、礦山、冶金、建材、公路、鐵路等行業中的大、中粒級物料,弧形篩在選煤工藝中擔負著脫水、脫介、脫泥、分級煤泥回收的作用。
弧形篩技術參數表:
型號
處理量 th
篩寬(mm)
弧形半徑 R(mm)
包角 (度)
篩孔尺寸(mm)
HS0715Ⅰ
40-80
700
2030
45
0.3~1.0
HS1015Ⅰ
60-120
1000
45
HS1315Ⅰ
90-180
1300
45
HS1615Ⅰ
120-220
1600
45
HS1915Ⅰ
160-300
1900
45
HS2215Ⅰ
200-360
2200
45
HS0720Ⅰ
40-80
700
60
HS1020Ⅰ
60-120
1000
60
HS1320Ⅰ
90-180
1300
60
HS1620Ⅰ
120-120
1600
60
HS1920Ⅰ
160-300
1900
60
HS2220Ⅰ
200-36
2200
60
HS2420Ⅰ
220-400
2400
60
弧形篩外形尺寸表:
型號
外型尺寸(mm)
A
A1
B
B1
H
H1
HS0715Ⅰ
489
384
700
855
2760
0
HS1015Ⅰ
489
384
1000
1155
2760
0
HS1315Ⅰ
489
384
1300
1455
2760
0
HS1615Ⅰ
489
384
1600
1755
2760
0
HS1915Ⅰ
489
384
1900
2055
2760
0
HS2215Ⅰ
489
384
2200
2355
2760
0
HS0720Ⅰ
666
492
700
855
2905
173
HS1020Ⅰ
666
492
100
1155
2905
173
HS1320Ⅰ
666
492
1300
1455
2905
173
HS1620Ⅰ
666
492
1600
1755
2905
173
HS1920Ⅰ
666
492
1900
2055
2905
173
HS2220Ⅰ
666
492
2000
2355
2905
173
HS2420Ⅰ
666
492
2200
2555
2905
173
弧形篩圖片:




弧形篩使用廠家維護維修知識:
1、建議制作支撐架,以掛吊備用篩面。
2、每班檢查篩格壓緊裝置,如有松動則應壓緊。
3、經常檢查密封條,發現磨損或有缺陷應該及時更換。
4、篩格應該經常取出,定期檢查篩面是否破損或凹凸不平,篩孔是否堵塞等。
5、每班檢查進料箱的連接是否松動,如果間隙變大,引起碰撞,會使設備破裂。6、振動篩雖然無需潤滑油,每年仍然需要大修一次,更換襯板,對兩道篩面進行修整等。振動電機要拆下檢查,并給電機軸承換油,如果軸承損壞,則要更換
7、每班檢查篩體支撐裝置,觀察中空橡膠墊有無明顯變形或者脫膠現象,當橡膠墊破損或者過渡壓扁時,應同時更換兩塊中空橡膠墊。
振動篩日常維護內容包括篩子表面,振動篩特別是篩面緊固情況,振動篩松動時應及時緊固。振動篩定期清洗篩子表面,振動篩對于漆皮脫落部位應及時修理、除銹并涂漆,對于裸露的加工表面應涂以工業凡士林以防生銹。
振動篩定期檢查:振動篩定期檢查包括周檢和月檢。
振動篩修理
1、對振動篩篩子進行定期檢查時所發現的問題,振動篩應進行修理。振動篩修理內容包括及時調整三角帶拉力,更換新帶,更換磨損的篩面以及縱向墊條,更換減振彈簧,更換滾動軸承、傳動齒輪和密封,更換損壞的螺栓,修理篩框構件的破損等。
2、篩框側板及梁應避免發生應力集中,振動篩因此不允許在這些構件上施以焊接。振動篩對于下橫梁開裂應及時更換,側板發現裂紋損傷時,應在裂紋盡頭及時鉆5mm孔,然后在開裂部位加補強板。激振器的拆卸、修理和裝配應由專職人員在潔凈場所進行。
3、振動篩拆卸后檢查滾動軸承磨損情況,振動篩檢查齒輪齒面,振動篩檢查各部件聯接情況,振動篩清洗箱體中的潤滑回路使之暢通,振動篩清除各結合面上的附著物,振動篩更換全部密封件及其他損壞零件。
弧形篩軸承損壞預防知識:
振動篩是使用振子激振所發作的復旋型振蕩而作業的。振子的上旋轉重錘使篩面發作平面回旋振蕩,而下旋轉重錘則使篩面發作錐面反轉振蕩,其聯合作用則使篩面發反復振蕩。在正常作業中,如何防止振動篩軸承損壞,下面咱們一起來探討一下:
當設備偏心塊在長時間使用后掉落或許偏心塊巨細不共同時,直線振蕩篩激振器股動對稱的偏心塊布局發作高速工作。會招致設備轉速反常。此刻要及時替換偏心塊布局,包管直線振蕩篩的兩個傾向塊巨細共同,工作平衡。直線振蕩篩的軸承在轉速反常后,很容易發作沖突和溫升。當直線振蕩篩的軸承短少光滑油劑或光滑油劑增加不符合設備需求,招致振動篩迷宮密封設備呈現阻塞后,會使軸承布局溫升跨越規則規模值,此刻要及時查看設備光滑體系,包管光滑油劑足夠衛生,若發現阻塞表象則要安裝軸承進行徹底的衛生;密封圈若呈現損壞或許軸承在磨損后呈現開裂等表象時,要及時對密封圈和軸承進行替換,從頭調整直線振蕩篩后重。
- 旋振篩全封閉結構利于環保 2019-04-29
- 旋振篩篩網破損換網只需要3-5分鐘 2019-04-18
- 礦用直線篩要均勻給料,定期檢查設備 2019-04-10
- 試驗篩用來檢測物料是否合格 2019-03-26
- 直線篩穩定可靠產量大發源地河南新鄉 2019-03-19
網址:www.keruide.net.cn
二維碼



















