- 信息詳細您現在所在的位置:新鄉市富皓機械設備有限公司 > 產品展示 > 給料機械 > 正文
剛性葉輪給料機(星型卸料器)
剛性葉輪給料機簡介: 點此鏈接→(詳細介紹給料機配件)
剛性葉輪給料機俗稱葉輪給料機或星型卸料器、星型卸料閥。是用于將上部料倉中的干燥粉狀物料或小顆粒物料連續地、均勻地喂送到下一設備中去,是一種定量給料設備。
剛性葉輪給料機用途:
GY型剛性葉輪式給料機用于將上部料倉中的干燥粉狀物料或小顆粒物料連續地、均勻地喂送到下一設備中去,是一種定量給料設備。廣泛應用于建材、冶金、化工、電力等行業,還能將上部料倉中的干燥粉狀或小顆粒連續均勻地輸送到下接設備中,鋼性葉輪給料機,又稱電動回轉卸料閥.鋼性葉輪給料機是連續均量輸送塵灰、煤粉及其他干燥物料(粒度小于10毫米)的輸送設備.
剛性葉輪給料機特點:
1 結構緊湊,造型美觀,使用方便。
2、運轉平穩,噪音低。
3、由于軸承、齒箱離開殼體一段距離,對于高溫、潤滑都有較大改善。
4、本廠也可按用戶要求設計制造。(支架聯軸器皮帶鏈條傳動)
5、本產品采用00號減速機專用潤滑脂,請定期檢查,加油。
剛性葉輪給料機原理:
當變速時由蝸桿付通過裝在同一主軸上的刮板,供給葉輪和測量葉輪實現給粉。煤粉自煤粉斗流入給粉機上部體內的隔板上及其缺口下面的供給葉輪的齒槽內,旋轉的葉輪帶著煤粉在供給葉輪殼內轉180度給葉輪殼缺口處,落到測量葉輪內的齒槽,測量葉輪再轉180度又把煤粉帶部體內的缺口片,煤粉即落入出粉管中,按此過程就達到連續、均勻給粉的防止停機時煤粉自流的目的。
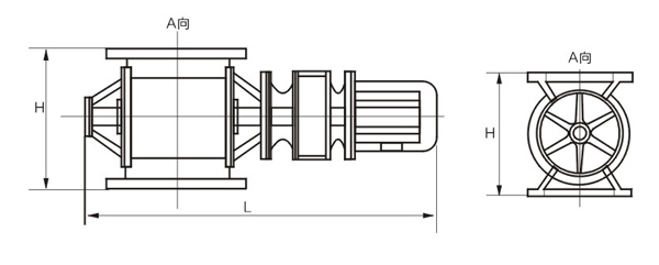
剛性葉輪給料機結構圖紙:

坐式葉輪給料機結構圖

立式葉輪給料機結構圖
葉輪給料機由電機、傳動裝置、機殼、底盤和葉輪等組成。機殼上、下端的進、出料口分別與料倉、受料設備連接。給料量的調節是靠改變電磁調速異步電動機的轉速達到,其變速系統是由一級蝸輪與蝸桿付構成。電機通過傳動裝置帶動葉輪旋轉,物料從上部料倉通過進料口進入到葉輪槽內,葉輪繞水平軸線轉動時物料落入葉輪的各腔格之間,隨葉輪旋轉半周后卸入受料設備。
剛性葉輪給料機技術參數:
型號 規格
生產能力
m3/h葉輪轉速
r/min進出料口尺寸
長x寬
mm轉動方式
齒輪減速電動機
給料機本體
外型尺寸
長x寬x高
mm給料機本體
重量
kg
型號
功率
kw轉速r/min
GY-Φ200X200
4
20
200X200
鏈輪
YTC561
1.5
31
570X300X300
67
7
31
聯軸器
GY-Φ200X300
6
20
200X300
鏈輪
YTC561
1.5
31
670X300X300
77
10
31
聯軸器
GY-Φ300X300
15
20
300X300
鏈輪
YTC561
1.5
31
760X400X450
155
23
31
聯軸器
GY-Φ300X400
20
20
300X400
鏈輪
YTC562
2.2
31
860X400X450
174
31
31
聯軸器
GY-Φ400X400
35
20
400X400
鏈輪
YTC751
3
31
925X520X600
231
53
31
聯軸器
GY-Φ400X500
43
20
400X500
鏈輪
YTC751
3
31
1025X520X600
268
67
31
聯軸器
GY-Φ500X500
68
20
500X500
鏈輪
YTC752
5.5
31
1075X640X760
550
剛性葉輪給料機圖片:




★ 本公司可根據客戶需求設計生產,并提供現場勘測、技術圖紙、安裝售后等系列服務。
★ 本公司對提供的產品圖片、技術參數等資料保留終的解釋權并以生產實物為準。
★本公司銷售熱線:18637380011 技術熱線:18437370011
- 旋振篩全封閉結構利于環保 2019-04-29
- 旋振篩篩網破損換網只需要3-5分鐘 2019-04-18
- 礦用直線篩要均勻給料,定期檢查設備 2019-04-10
- 試驗篩用來檢測物料是否合格 2019-03-26
- 直線篩穩定可靠產量大發源地河南新鄉 2019-03-19
網址:www.keruide.net.cn
二維碼







